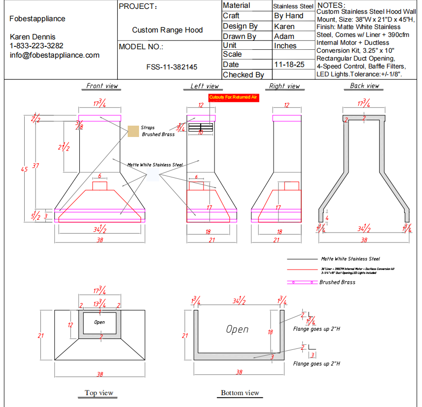
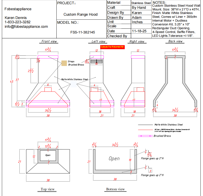
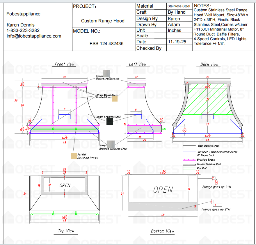
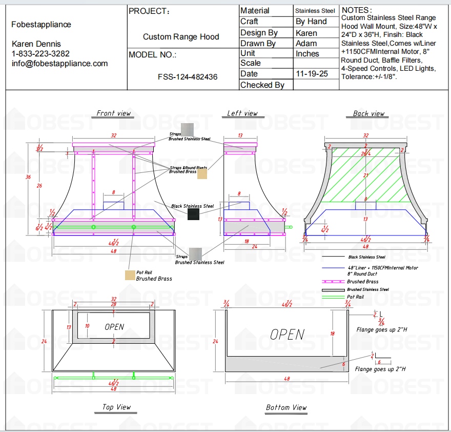
Fobest Range Hood
Filters
Filters
1199 products
Sort by
Sort by
FobestFobest Custom Metal Range Hood - Canada Custom Order Link for Andrea Hylton
Sale price$4,926.00 USD
Buying Guide
Click Buying Guide to know how to Customize "The One"
Free shipping
Free shipping and returns - customs and duties taxes included
Contact us
Need to contact us ? Just send us an e-mail at info@fobestappliance.com
Custom Ideas
Complete all custom requirements and ideas at a click with talented American designers







































